Rénovation totale, magnifique appartement situé dans les combles (type loft)

CHF 450'000

Aperçu

  • Mis à jour le :
  • 16.12.2025
  • 1 Chambres
  • 1 Salles de bain
  • 97 m2

Description

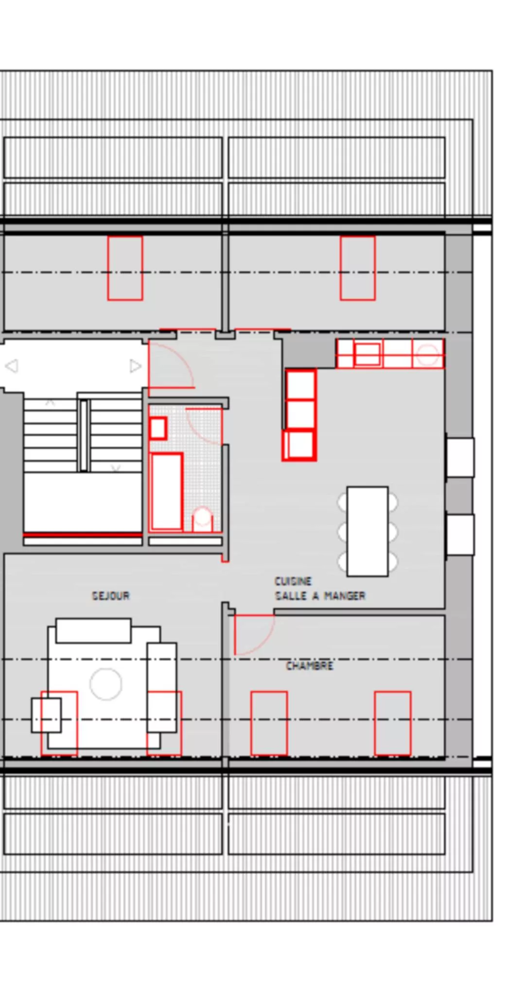
Appartement traversant de 2,5 pièces + deux disponibles/dressing/bureaux, bénéficiant d’une belle orientation et d’une belle luminosité.
Rénové avec goût et avec des matériaux contemporain, parquet au sol, 1 chambres à coucher, 1 salle de bains/WC, cuisine semi-ouverte entièrement équipée avec de l’électroménager Siemens, 1 séjour/salle à manger.

1 cave, ainsi qu’une place de parc extérieure à 10’000.- ou un garage box à 20’000.- (en sus du prix de vente).

A visiter absolument !

Technique :

– Immeuble sans ascenseur
– Fenêtres triple vitrage PVC
– Électroménager Siemens
– Chauffage au gaz distribution par radiateurs

Code postal: 1483
Pays: Suisse
Ouvrir dans Google Maps
Référence de l’annonce : 25738
Prix: CHF 450'000
Surface: 97 m2
Chambres: 2.5
Chambres: 1
Salles de bain: 1
Vente aux étrangers: non
Parking inclus dans le prix: non

Annonces similaires

Vente

Superbe appartement mansardé neuf de 4½ dans...

CHF 1'125'000
NOUVELLE PROMOTION DE 5 APPARTEMENTS ! DÉJÀ 3 LOTS RÉSERVÉS ! LE CHANTIER VIENT DE DÉMARRE ...
4.5 2 117 m2détails
11
Vente

Magnifique duplex de 5½ pièces dans les comb...

CHF 755'000
Magnifique duplex lumineux de 4½ pièces + galerie dans les combles, de bon standing, situé ...
5.5 2 140 m2détails
Vente

Duplex en vieille ville situé à la Rue des G...

CHF 2'700'000
Situé au cœur de la Vieille-Ville, dans un magnifique et emblématique immeuble classé du 1 ...
4.5 2 181 m2détails
Vente

Rénovation totale, magnifique appartement ne...

CHF 360'000
Appartement traversant de 2,5 pièces, bénéficiant d’une belle orientation et d&rsquo ...
2.5 1 80 m2détails

Demande de dossier ou de renseignements

Comparer les annonces